Power window stopped working
Is there is a single fuse for all power windows (1996 SW2 5 MT)? All windows seem to work except front passenger. Seems I had this issue, some years ago with rear drivers' window since I rarely roll down any windows. except the drivers'...Turns out it was just stuck, though. Thanks
All the windows should be on the same circuit. Does the S car have a master switch on the driver’s door and a single switch near each other window? Or are they like my L which has the window switches on both sides of the floor shifter. My L is a European design with about half of the cars produced with the steering wheel on the other side.
That being said if your car has a master switch of four, does the window in question work from the remote switch? If not you may need to access the electrical connection at the window motor and verify power and ground when the switch is moved. Power and ground will swap places to move the window in the other direction. If the power and ground are good in both directions, tap on the motor. It may be time for a window motor, the brushes do wear out.
That being said if your car has a master switch of four, does the window in question work from the remote switch? If not you may need to access the electrical connection at the window motor and verify power and ground when the switch is moved. Power and ground will swap places to move the window in the other direction. If the power and ground are good in both directions, tap on the motor. It may be time for a window motor, the brushes do wear out.
Operation CHARM: Car repair manuals for everyone.
Home >> Saturn >> 1996 >> SW2 L4-1.9L DOHC VIN 7 >> Repair and Diagnosis >> Diagrams >> Electrical Diagrams >> Windows >> System Diagram

pro multis · About Operation CHARM
Home >> Saturn >> 1996 >> SW2 L4-1.9L DOHC VIN 7 >> Repair and Diagnosis >> Diagrams >> Electrical Diagrams >> Windows >> System Diagram
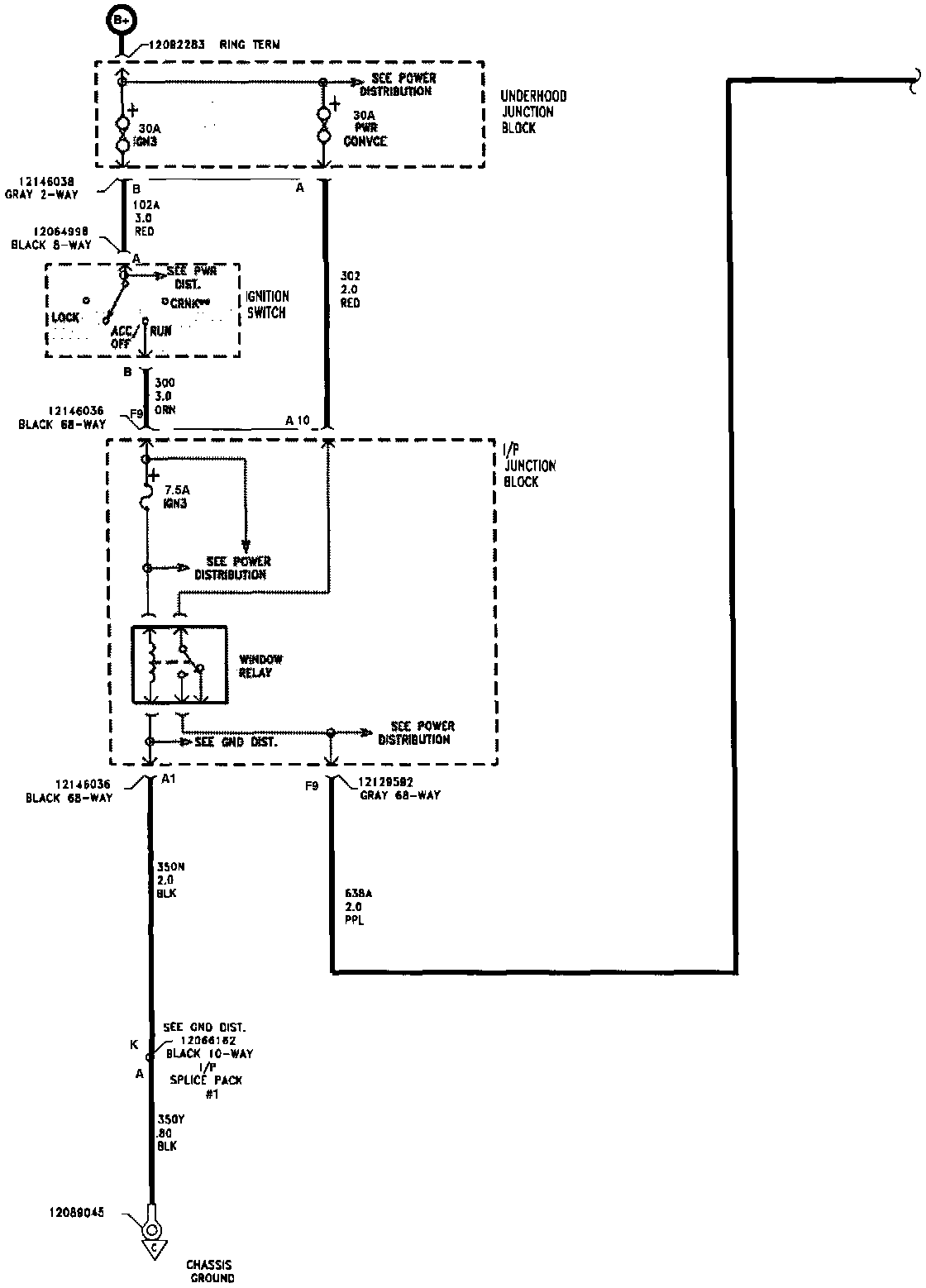
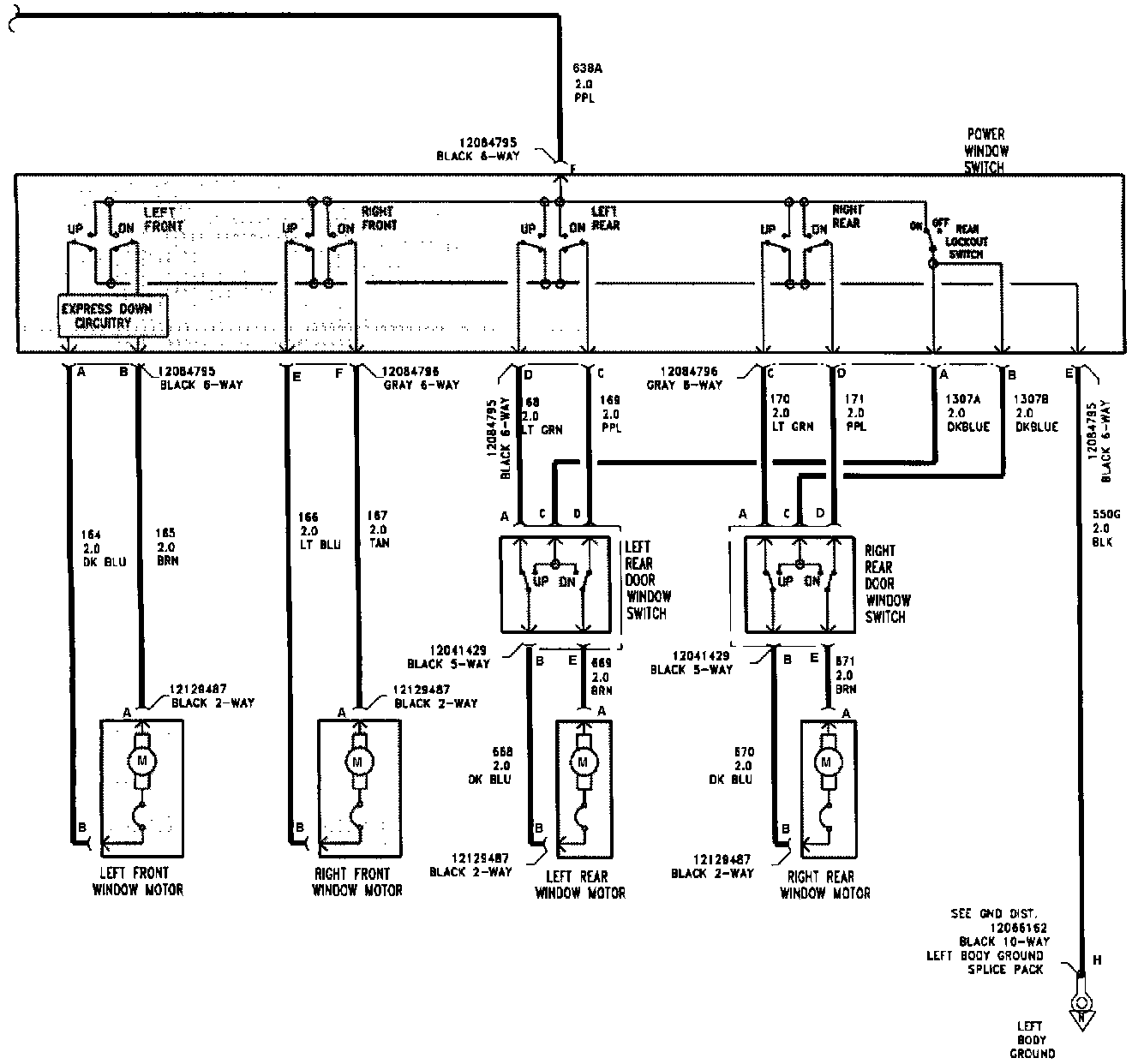
System Diagram
Power Windows (Part 1 Of 2):
Power Windows (Part 2 Of 2):
pro multis · About Operation CHARM
Thanks for the responses.
On the SW series (at least mine) there are switches for both front windows and both back windows located behind the gear shift, between the front seats. The front doors have only lock/unlock buttons in the doors. The backs have open/close window buttons in the doors but those can be activated/deactivated (to prevent kids from playing with the windows in the back?) by a master switch, also located behind the gear shift.
You're probably correct in that the motor is the problem. But, since I'm not a DIYer, rarely have passengers (and even more rarely need to open/close that passenger window), I can't justify spending the $$ to have the motor replaced or worse yet have it discovered that the problem is a part that has been discontinued.
Actually, I've been very fortunate in that this is the first part (other than the very occasional light bulb) that has failed. Don't know if that's because I've treated the car so well and always replaced things before they had a chance to fail or if it has been just dumb luck on my part.
On the SW series (at least mine) there are switches for both front windows and both back windows located behind the gear shift, between the front seats. The front doors have only lock/unlock buttons in the doors. The backs have open/close window buttons in the doors but those can be activated/deactivated (to prevent kids from playing with the windows in the back?) by a master switch, also located behind the gear shift.
You're probably correct in that the motor is the problem. But, since I'm not a DIYer, rarely have passengers (and even more rarely need to open/close that passenger window), I can't justify spending the $$ to have the motor replaced or worse yet have it discovered that the problem is a part that has been discontinued.
Actually, I've been very fortunate in that this is the first part (other than the very occasional light bulb) that has failed. Don't know if that's because I've treated the car so well and always replaced things before they had a chance to fail or if it has been just dumb luck on my part.
They do stick from lack of use sometimes. My grandson’s 2002 Oldsmobile Alero’s drivers window did not work after the car sat for a couple years. It worked when the car was parked before. I smacked the inner door panel low on the door near to where the motor is mounted and it started to work. It has been working for a year with no further problems. You might try that, don’t hurt your hand or break the panel. Just a good smack.
Worst case, it's pretty easy to remove the inner and outer door panels to access the motor and the regulator. Water always gets down in there and it may be that the regulator has rusted to itself or other things. Plus you can check power to the motor. Since it's on the passenger side there are quite a few out there for sale for about 30 to $40.
This has given me some options that I didn't know I had, before. Thanks.
"They do stick from lack of use sometimes"
Seems as if I remember the rear passenger window doing the same thing, some years ago. It rolled down part way but wouldn't go back up. I was able to put the window between my palms and force it up. The few times I've tried to open it since then, it has worked.
"Water always gets down in there and it may be that the regulator has rusted to itself or other things".
The car has always "lived" in the southwest (Las Vegas and Phoenix areas) and either under a carport or in a garage where I don't think dampness is an issue, although any possibility is worth considering.
"Might not be the motor".
I'm not looking forward to that possibility !
Thanks again. Keeping my fingers crossed that it's something benign.
"They do stick from lack of use sometimes"
Seems as if I remember the rear passenger window doing the same thing, some years ago. It rolled down part way but wouldn't go back up. I was able to put the window between my palms and force it up. The few times I've tried to open it since then, it has worked.
"Water always gets down in there and it may be that the regulator has rusted to itself or other things".
The car has always "lived" in the southwest (Las Vegas and Phoenix areas) and either under a carport or in a garage where I don't think dampness is an issue, although any possibility is worth considering.
"Might not be the motor".
I'm not looking forward to that possibility !
Thanks again. Keeping my fingers crossed that it's something benign.
Update!!!
Thought I'd start trying the easiest (and least expensive) "solve". Today, I rapped on the inner passenger door a few times and ... VOILA !!! ... power window now no longer stuck closed and is working normally.
As I said, previously, whether or not that window was operational was academic as I seldom use it. I'm just OCD enough that it "bugs" me when I know something isn't working as it was meant to.
Thought I'd start trying the easiest (and least expensive) "solve". Today, I rapped on the inner passenger door a few times and ... VOILA !!! ... power window now no longer stuck closed and is working normally.
As I said, previously, whether or not that window was operational was academic as I seldom use it. I'm just OCD enough that it "bugs" me when I know something isn't working as it was meant to.
Thread
Thread Starter
Forum
Replies
Last Post



